
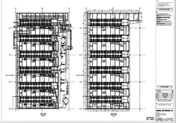
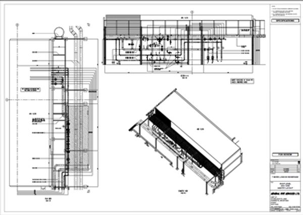
We offer an on site measuring service to produce all types of prefabrication sketches;
this removes responsibility from your workforce and with our experience at this, will
reduce your costs.

Prefabrication sketches can also be produced from your construction drawings, this will usually result in site visits to confirm measurements and to take final dimensions when connecting to plant

General Pipe Services Ltd
Copyright © 2022 General Pipe Services - All Rights Reserved.